





Le projet consiste en la création d’une maison en containers, avec deux propositions différentes.
La première option implique l’utilisation de deux containers de 40 pieds, tandis que la seconde propose quatre containers de 20 pieds.
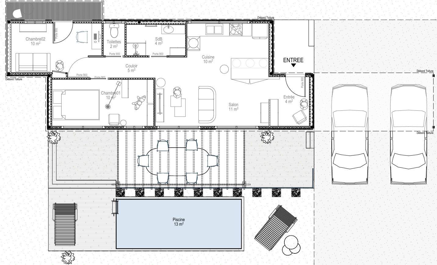
Le dossier Avant Projet Sommaire inclut des considérations sur l’intérieur, l’extérieur, la modularité et l’agencement de l’espace.
Ces éléments visent à assurer une conception fonctionnelle et esthétique pour la maison container.
Intérieur. Extérieur. Modularité. Agencement
